Maison Talence 123m²

- 545 000 € HAI*

Description

  • Localisation : Bordeaux (33000)
  • Surface : 123 m²
  • Référence : V-7038

ECHOPPE BORDEAUX BERLIQUET - MEDOQUINE

ECHOPPE BORDEAUX BERLIQUET - MEDOQUINE
À deux pas du Campus Carreire, dans une rue calme et préservée de l'agitation environnante, découvrez une véritable parenthèse de verdure au coeur d'un secteur recherché.
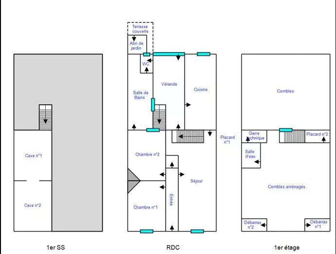
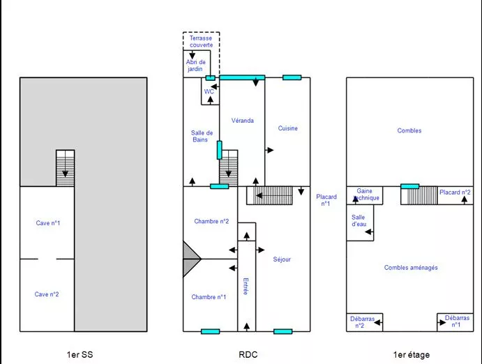
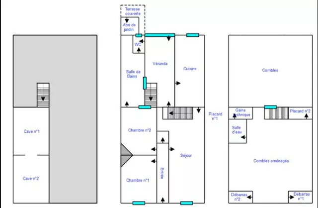
Cette charmante échoppe, bien entretenue et à rafraîchir selon vos envies, offre de plain-pied une entrée, un double séjour bénéficiant d'une belle hauteur sous plafond, deux chambres confortables et une grande salle de bains. La cuisine et la véranda s'ouvrent sur un magnifique jardin intime, sans aucun vis-à-vis, véritable havre de paix en pleine ville.
À l'étage, un comble aménagé accueille actuellement un spacieux dortoir avec salle d'eau. Cet espace peut facilement être repensé en chambre supplémentaire avec bureau, idéal pour le télétravail ou un espace étudiant.
Située à proximité immédiate des commerces de Tauzin, du CHU de Bordeaux accessible à pied, du Parc de la Béchade pour vos balades, et du bus 24 reliant directement le centre-ville, cette maison bénéficie d'un emplacement privilégié.
Un bien rare dans un environnement paisible, offrant un cadre de vie agréable et un beau potentiel après rafraîchissement.
Contactez dès maintenant LALANNE IMMO au 05 56 24 58 01 pour organiser une visite.

* : Honoraires Agence Inclus (dont 25 000 € TTC à la charge de l'acquéreur, soit 520 000 € hors honoraires)

Ce bien m'intéresse

Informations

  • Surface du séjour : 27 m²
  • Surface du terrain : 260 m²
  • Année de construction : 1900
  • Pièces : 6
  • Chambres : 3
  • Salle de bain : 1
  • Salle d'eau : 1
  • WC : 1
  • Cave : 1
  • Type de chauffage : Individuel gaz radiateur
  • Type cuisine : Séparée
  • Etage : RdC
  • Taxe foncière : 1 542 €

Créer une alerte mail

Calculer mon emprunt

Partager :

Bilan énergétique

Consommation d’énergie

C Consommation (énergie primaire)
161 kWh/m2.an

Émissions de gaz à effet de serre

C Émissions 29 kgCo2/m2.an

Diagnostic réalisé après le 1er juillet 2021

Montant estimé des dépenses annuelles d'énergie pour un usage standard : entre 1 918,00 € et 2 594,00 €

Informations Géorisques

Les informations sur les risques auxquels ce bien est exposé sont disponibles sur le site Géorisques : www.geoportail.gouv.fr

Aux alentours

Calculer mon emprunt

Indiquez une mensualité ou une durée d'emprunt.

mois

Total de l'emprunt :  € basé sur un taux standard de 1.8%