Appartement Saint-Augustin 96m²

- 249 000 € HAI*

Description

  • Localisation : Bordeaux (33200)
  • Surface : 96 m²
  • Référence : V20007043

APPARTEMENT A RENOVER T4 A VENDRE DE 97 M2 - 2 BALCONS, CAVE

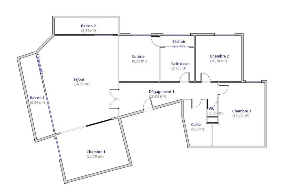
Situé à Bordeaux, dans le quartier recherché de Saint-Augustin, au 1er étage d'un immeuble de trois niveaux, cet appartement lumineux prend place dans une petite copropriété de 4 lots d'habitation avec ascenseur.
Il est à rénover, un chiffre détaillé est à votre disposition à l'agence.
La pièce de vie s'ouvre sur deux balcons, offrant un quotidien dedans-dehors très agréable. La cuisine, attenante à un séchoir et à un cellier, optimise l'organisation de l'espace. Possibilité d'agrandir le séjour en réunissant la troisième chambre pour créer un vaste espace traversant et ultra lumineux d'environ 46 m2. L'espace nuit comprend alors deux chambres, une salle d'eau et un cellier.
Une cave privative en sous-sol de 10m2 et une place de stationnement sécurisée complètent ce bien. Des travaux de rénovation sont à prévoir, mais la clarté, la modularité et l'emplacement au coeur de Saint-Augustin en font une opportunité rare. Il s'agit d'une excellent rapport qualité:prix au du de l'emplacement ! En effet, les commerces, du quartier St-Augustin ou de la place Mondésir sont facilement accessibles. L'arrêt de la Liane 1 est au pied de l'immeuble.
Appartement à vendre à Bordeaux Saint-Augustin -- petite copropriété avec ascenseur, balcons, cave et stationnement.
Pour organiser une visite, contactez LALANNE IMMOBILIER au 05 56 24 58 01 qui pourra aussi vous conseiller sur les travaux à envisager.

* : Honoraires Agence Inclus (dont 12 000 € TTC à la charge de l'acquéreur, soit 237 000 € hors honoraires)

Ce bien m'intéresse

Informations

  • Surface du séjour : 46 m²
  • Année de construction : 1960
  • Pièces : 4
  • Chambres : 3
  • Salle d'eau : 1
  • WC : 1
  • Balcon : OUI
  • Cave : 1
  • Ascenseur : OUI
  • Type de chauffage : Individuel gaz
  • Type cuisine : Séparée
  • Etage : 1
  • Nombre de lots dans la copropriété : 4
  • Charges de copropriété mensuelles : 180 €
  • Taxe foncière : 1 754 €

Créer une alerte mail

Calculer mon emprunt

Partager :

Bilan énergétique

Consommation d’énergie

E Consommation (énergie primaire)
268 kWh/m2.an

Émissions de gaz à effet de serre

E Émissions 59 kgCo2/m2.an

Diagnostic réalisé après le 1er juillet 2021

Montant estimé des dépenses annuelles d'énergie pour un usage standard : entre 2 270,00 € et 3 120,00 €

Informations Géorisques

Les informations sur les risques auxquels ce bien est exposé sont disponibles sur le site Géorisques : www.geoportail.gouv.fr

Aux alentours

Calculer mon emprunt

Indiquez une mensualité ou une durée d'emprunt.

mois

Total de l'emprunt :  € basé sur un taux standard de 1.8%